
下吸盤送紙部
● 采用下吸盤式不停頓送紙方式。
● 氣動式側推擋板預先對紙堆推齊整理。
● 采用真空吸附方式將紙板送入壓紙輥,不易刮花印刷表面。

輸紙臺側定位部
● 左右各一套側定位推規,保證紙板側定位精準。
● 輸紙步距調整采用先進的不停機調節。
● 前擋前后位置可根據咬口尺寸作微調。

模切部
● 模切底板和刀模板回轉裝置。
● 模切刀版與模切板框的聯接采用抓釘螺母和螺絲形式,裝入時采用中央定位系統,換版快捷、準確。
● 模切板框和模切下墊板采用日本 SMC 氣量調節器鎖定,避免上板框鎖定安裝不到位的情況,有效避免人為因素操作造成的損失。

可變速蝸輪傳動裝置
獨特蝸輪曲柄機構帶動肘桿式高精密度平面模切下工作臺,模切沖程短,動角大,有利于多拼版高速運行。

三框清廢部
● 水平位置固定式清廢中模版配合漸進加速運動曲線清廢上框打廢點動作,清廢結構精簡,動作減少,打廢點瞬間力度加大,清廢動作更簡捷有效。
● 牙排在清廢部停留時采靠規定位,使清廢定位更加準確。
● 采用中央定位系統,校版快,調整方便。
● 前清廢裝置能夠完全清除咬紙邊的廢料,并由輸送帶將咬紙邊廢料送出機外。

叼口清廢裝置
叼口部分廢邊通過此裝置剝離并且輸送到機器外部,從而完成四邊清廢。

高堆卷簾式不停機副收紙部
高堆收紙臺升降裝置,收紙結構可整堆紙拉出機外。無需任何操作,主、副收紙裝置自動切換,大大提升工作效率。

自動供油系統
整機采用集中自動供油系統,確保傳動部位不缺油。
| 輸紙部 | BHT-1500EFC/1650EFC/1900EFC/2100EFC |
| 01、高精密下吸盤送紙飛達,底部飛達不停頓式的吸嘴,采用真空吸附方式將紙板送入壓紙輥,不易刮花印刷表面 | 〇 |
| 02、電動側推擋板及氣動齊紙裝置(右側) | 〇 |
| 03、電動控制送紙輥 | 〇 |
| 04、壓紙片及前擋規,雙張檢測裝置反應準確 | 〇 |
| 05、前擋勾板調節裝置,紙板彎曲上下可調整 | 〇 |
| 06、輸紙步距不停機調節裝置 | 〇 |
| 07、前檔板前后位置微調裝置,可根據咬口尺寸微調 | 〇 |
| 08、左右側定位推規,確保紙板側定位精準 | 〇 |
| 09、德國貝克品牌吹吸兩用真空泵 | 〇 |
| 模切部 | |
| 01、整機鑄件采用QT-700-2球墨鑄鐵 | 〇 |
| 02、進口蝸輪,蝸桿與 40cr 曲軸 | 〇 |
| 03、可變速蝸輪傳動機構,模切沖程短,動角大,有利于多拼版小連點高速運行,生產效率高,不易散版 | 〇 |
| 04、整套進口陽極處理鋁合金牙排及定位結構,每條牙排采用可調式牙排結構 | 〇 |
| 05、進口主傳動鏈條 | 〇 |
| 06、進口間歇分割器 | 〇 |
| 07、齒輪傳動、精度準確 | 〇 |
| 08、進口扭力限制過載保護器 | 〇 |
| 09、主傳動進口氣動離合器剎車裝置 | 〇 |
| 10、壓力自動調節裝置,可通過PLC觸摸屏按鍵實現壓力的準確控制 | 〇 |
| 11、模切底板和刀模板回轉裝置 | 〇 |
| 12、15mm模切鋼板墊板配備5mm組合式下墊板中心定位結構+/-0.9mm縱橫向微調裝置, 換版快捷、簡單, 減少補版作業時間 | 〇 |
| 13、模切刀版與模切板框的聯接采用抓釘螺母和螺絲形式,裝入時采用中央定位系統,換版快捷、準確 | 〇 |
| 14、模切板框和模切下墊板采用日本SMC氣量調節器鎖定,避免上板框鎖定安裝不到位的情況,有效避免人為因素操作造成的損失 | 〇 |
| 15、西門子(茵夢達)品牌主電機傳動 | 〇 |
| 16、日本SMC氣壓檢測裝置,氣壓過低報警提示 | 〇 |
| 17、配備儲氣罐,確保整機氣壓穩定 | 〇 |
| 18、整機采用集中自動供油系統,確保傳動部位不缺油 | 〇 |
| 清廢部(三框、四邊清廢) | |
| 01、采用三框清廢機構 | 〇 |
| 02、上清廢框抬起裝置,可任意選擇是否使用清廢功能 | 〇 |
| 03、采取公母模版實現各式清廢 | 〇 |
| 04、中間清廢板的安裝采用中心線快速定位安裝方式,快速安裝清廢板,上、下框運行,而中框不運行,少打連點,不易散板 | 〇 |
| 05、漏斗式廢料收集裝置 | 〇 |
| 06、叼口清廢裝置可將叼口廢邊自動輸送到機外,配合清廢滑道,可自動滑入主清廢通道 | 〇 |
| 收紙部 | |
| 01、卷簾式輔收紙架,可實現不停機收紙 | 〇 |
| 02、高堆收紙臺升降裝置,收紙結構可整堆紙拉出機外(高堆收紙專用) | 〇 |
| 03、收紙齊紙裝置 | 〇 |
| 04、上下極限開關光電檢測,防止收紙臺堆紙過高和紙張上卷 | 〇 |
| 05、彈簧鏈條調節裝置,調節彈簧鏈條漲緊后,可減少牙排轉向的慣量沖擊,并保持鏈條的均衡漲緊度 | 〇 |
| 電氣部 | |
| 01、德國西門子 PLC 控制系統 | 〇 |
| 02、模切部和收紙部采用德國西門子10.4英寸和7英寸觸摸顯示屏 | 〇 |
| 03、整機采用德國Moeller的繼電器、交流接觸器、空氣開關和按鈕,保證了電器部分的穩定和可靠 | 〇 |
| 04、整機采用日本歐姆龍Omron的光電開關,光纖,編碼器和傳感器,確保電氣檢測各部位動作的準確和穩定 | 〇 |
注:此配置單只供參考,正式配置單以合同為準。標配:〇;選配:△
| 型 號 | BHT-1500EFC | BHT-1650EFC | BHT-1900EFC | BHT-2100EFC |
| 最大紙張幅面 | 1520×1100mm | 1650×1200mm | 1900×1400mm | 2100×1600mm |
| 最小紙張幅面 | 480×480mm | 650×500mm | 650×500mm | 750×650mm |
| 最大模切幅面 | 1500×1100mm | 1630×1180mm | 1880×1380mm | 2080×1580mm |
| 最小廢邊寬度 | 10-18mm | 10-18mm | 10-18mm | 10-18mm |
| 叼口空白 | 9-17mm | 9-17mm | 9-17mm | 9-17mm |
| 刀線高 | 23.8mm | 23.8mm | 23.8mm | 23.8mm |
| 板框內版尺寸 | 1600×1145mm | 1670×1230mm | 1920×1430mm | 2120×1630mm |
| 紙張規格 | ≤9mm瓦楞紙,F、E、B、C、A和AB瓦楞紙 | ≤9mm瓦楞紙,F、E、B、C、A和AB瓦楞紙 | ≤9mm瓦楞紙,F、E、B、C、A和AB瓦楞紙 | ≤9mm瓦楞紙,F、E、B、C、A和AB瓦楞紙 |
| 模切精度 | ≤±0.15mm | ≤±0.2mm | ≤±0.2mm | ≤±0.2mm |
| 最大工作速度 | 6000s/h | 6000s/h | 5000s/h | 4000s/h |
| 最大工作壓力 | 400T | 400T | 450T | 450T |
| 最大收紙高度(卷簾式收紙) | 1500mm (含木托板) | 1500mm (含木托板) | 1500mm (含木托板) | 1500mm (含木托板) |
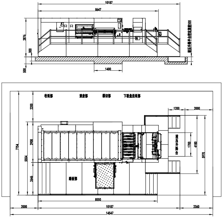
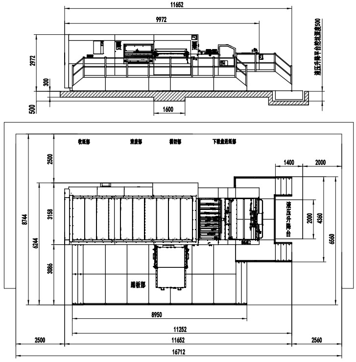
| 整機尺寸(卷簾式收紙) | 9887×5500×2800mm(L×W×H)(寬含腳踏板) | 10187×5970×2876mm(L×W×H)(寬含腳踏板) | 11652×6560×2972mm(L×W×H)(寬含腳踏板) | 14370×7160×2972mm(L×W×H)(寬含腳踏板) |
| 機器總重 | 39T | 41T | 47T | 52T |
| 主電機功率 | 18.5kw | 18.5kw | 18.5kw | 22kw |
| 滿載功率 | 38kw | 38kw | 40kw | 47kw |
| 氣源要求 | 壓力:0.6~0.7Mpa,流量:≥1m3/min | 壓力:0.6~0.7Mpa,流量:≥1m3/min | 壓力:0.6~0.7Mpa,流量:≥1m3/min | 壓力:0.6~0.7Mpa,流量:≥1m3/min |

