MHK-820CE全自動清廢平壓平模切機主要用于印刷包裝工業中的紙盒、紙箱、商標的模切、壓痕和冷壓凹凸等,特別是各種高級精細的印刷品,如煙盒、酒盒、禮品盒、小家電盒、化妝品盒等,均可以在本機上進行模切凹凸壓痕,以獲得富于立體感、精致美觀的印刷制品。

高速送紙飛達頭,可根據紙張情況自由調整。

采用氣彈簧輔助動力,到位減速機構裝置,與壓紙框配備整體調節壓紙輪裝置,方便快速調節。

15mm模切鋼板墊板配備5mm組合式下墊板中心定位結構+/-0.9mm縱橫向微調裝置, 換版快捷簡單, 減少補版作業時間。

進口高精度間歇分割器,長期使用也能保證較高的定位精度。

中間清廢板的安裝采用中心線快速定位安裝方式,使操作人員可以快速安裝清廢板, 提高換板效率。

卷簾式輔收紙架,可實現不停機收紙,收紙雙向輔助吹風,手動取樣機構,操作方便。

本機采用德國穆勒、日本歐姆龍電器元件,操作簡易,保養維護方便。

德國BECKER無油式吹吸兩用真空泵。

整機采用集中自動供油系統,確保傳動部位不缺油。
| 輸紙部 | MHK-820CE |
| 01、不停機高速送紙部 | 〇 |
| 02、魚鱗式強力吸紙飛達頭,4 吸 4 送,吸頭可配合紙張的變形狀況調試各種吸紙角度 | 〇 |
| 03、可調式吸風筒,吸頭及分氣閥超硬合金處理 | 〇 |
| 04、3 道飛達頭防撞裝置 | 〇 |
| 05、橫向分紙吹風裝置 | 〇 |
| 06、主、副堆紙臺不停車交替,飛達不停機操作 | 〇 |
| 07、主給紙堆電動左右微調裝置 | 〇 |
| 08、預堆紙裝置配置軌道使操作人員可準確方便地將紙堆送入飛達 | 〇 |
| 09、紙張對位調節裝置,能夠在不停機的狀態下對紙張到達前規距離進行手動調整 | 〇 |
| 10、大斜面輸紙臺,適合于薄紙與彎曲紙張的高速輸送 | 〇 |
| 11、推拉兩用側規,操作側、傳動側各一套。側規可在推拉規間調節以滿足不同紙張需求 | 〇 |
| 12、側規、前規紙張光電檢測 | 〇 |
| 13、紙張輸送到前規減速機構 | 〇 |
| 14、機電式雙張檢測器 | 〇 |
| 15、進口輸紙皮帶及不銹鋼傳送板 | 〇 |
| 16、輸紙框氣動抬起裝置 | 〇 |
| 17、單點離合器:輸送部與主機部能夠隨時分離和同步結合,簡化和方便了操作順序。無論打樣、試壓力等都能隨心所欲地分離及合上輸送部 | 〇 |
| 18、PLC 及電子凸輪控制整機的時序 | 〇 |
| 19、德國貝克品牌吹吸兩用真空泵 | 〇 |
| 模切部 | |
| 01、整機鑄件采用QT-700-2球墨鑄鐵 | 〇 |
| 02、進口蝸輪,蝸桿與40cr曲軸 | 〇 |
| 03、整套進口陽極處理鋁合金牙排及定位結構,每條牙排采用可調式牙排結構 | 〇 |
| 04、進口主傳動鏈條 | 〇 |
| 05、進口間歇分割器 | 〇 |
| 06、進口同步帶、帶輪傳動 | 〇 |
| 07、進口過載扭力限制保護器 | 〇 |
| 08、主傳動進口氣動離合器剎車裝置 | 〇 |
| 09、壓力自動調節裝置,可通過PLC觸摸屏按鍵實現壓力的準確控制 | 〇 |
| 10、模切壓力采用變形測量器直接精確測量,并在人機界面上顯示 | 〇 |
| 11、模切底板和刀模板回轉裝置 | 〇 |
| 12、15mm模切鋼板墊板配備5mm組合式下墊板中心定位結構+/-0.9mm縱橫向微調裝置, 換版快捷、簡單, 減少補版作業時間 | 〇 |
| 13、模切刀版與模切板框的聯接采用抓釘螺母和螺絲形式,裝入時采用中央定位系統,換版快捷、準確 | 〇 |
| 14、模切板框和模切下墊板采用日本SMC氣量調節器鎖定,避免上板框鎖定安裝不到位的情況,有效避免人為因素操作造成的損失 | 〇 |
| 15、西門子(茵夢達)品牌主電機傳動 | 〇 |
| 16、日本SMC氣壓檢測裝置,氣壓過低報警提示 | 〇 |
| 17、配備儲氣罐,確保整機氣壓穩定 | 〇 |
| 18、整機采用集中自動供油系統,確保傳動部位不缺油 | 〇 |
| 清廢部(三框清廢) | |
| 01、上清廢傳動機構 | 〇 |
| 02、上清廢框抬起裝置,可任意選擇是否使用清廢功能 | 〇 |
| 03、中間清廢陰模傳動機構 | 〇 |
| 04、下清廢傳動機構 | 〇 |
| 05、 中間清廢板的安裝采用中心線快速定位安裝方式,使操作人員可以快速安裝清廢板,提高換板效率 | 〇 |
| 收紙部 | |
| 01、卷簾式輔收紙架,可實現不停機收紙 | 〇 |
| 02、可調機械式收紙毛刷壓紙機構,幫助牙排卸紙并堆疊 | 〇 |
| 03、收紙齊紙裝置 | 〇 |
| 04、上下極限開關光電檢測,防止收紙臺堆紙過高和紙張上卷 | 〇 |
| 05、收紙部可通過 7 英寸觸摸屏調控整臺機器 | 〇 |
| 06、收紙雙向輔助吹風,手動取樣機構,操作方便 | 〇 |
| 07、彈簧鏈條調節裝置,調節彈簧鏈條漲緊后,可減少牙排轉向的慣量沖擊,并保持鏈條的均衡漲緊度 | 〇 |
| 電氣部 | |
| 01、整機采用匯川PLC控制系統 | 〇 |
| 02、模切部采用德國西門子10.4英寸觸摸顯示屏 | 〇 |
| 03、整機采用德國Moeller的繼電器、交流接觸器、空氣開關和按鈕,保證了電器部分的穩定和可靠 | 〇 |
| 04、整機采用日本歐姆龍Omron的光電開關,光纖,編碼器和傳感器,確保電氣檢測各部位動作的準確和穩定 | 〇 |
注:此配置單只供參考,正式配置單以合同為準。標配:〇;選配:△
| 型 號 | MHK-820CE |
| 最大用紙幅面 | 820×600mm |
| 最小用紙幅面 | 310×260mm |
| 最大模切幅面 | 800×580mm |
| 叼口空白 | 9-17mm |
| 最小廢邊寬度 | 10-18mm |
| 刀線高 | 23.8mm |
| 板框內版尺寸 | 910×610mm |
| 紙張規格 | 80~2000g/m2卡紙,0.1~2mm 卡紙,≤4mm 瓦楞紙 |
| 模切精度 | ≤±0.1mm |
| 最大工作壓力 | 300T |
| 最大工作速度 | 7500s/h |
| 最大給紙高度 | 1500mm(含木托板) |
| 最大收紙高度 | 1300mm(含木托板) |
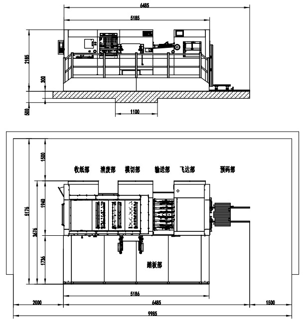
| 整機尺寸 | 6485×3676×2185mm(L×W×H)(長含預上紙軌道;寬含腳踏板) |
| 機器總重 | 13T |
| 主電機功率 | 11w |
| 滿載功率 | 17kw |
| 氣源要求 | 壓力:0.6~0.7Mpa,流量:≥0.37m3/min |
